Nocera Superiore (SA) - Il teatro ellenistico-romano in loc. Pareti
L’edificio fu identificato e parzialmente portato alla luce con scavi sistematici dal celebre archeologo Werner Johannowsky, tra la fine degli anni ‘70 e gli inizi degli anni ‘80, nella zona compresa tra le località di Pareti e Pucciano di Nocera Superiore dove già i fratelli Fresa, nel 1957, avevano segnalato la presenza di un edificio interpretato inizialmente come una basilica.
Il teatro, risalente alla metà del II secolo a.C., rappresenta, probabilmente, il più antico edificio del genere in un centro non greco della Campania.
Esso fu costruito addossato alla porzione centrale della cinta muraria della città di Nuceria e collegato all’angolo sud-ovest mediante una struttura sporgente che potrebbe essere stata parte di una torre con relativa camera sottostante, posta lungo il camminamento di ronda. Infatti la fase originaria del teatro è coeva proprio all’introduzione delle torri con camera inferiore pertinenti alla cinta muraria. L’edificio fu ubicato lungo l’asse della strada orientata N/S e posto, quindi, in posizione frontale rispetto alla porta chiamata Portaromana.
Pianta dell'antica città di Nocera con indicazione del teatro
Era parte integrante di un ginnasio di cui è stata messa in evidenza, ad ovest, la palestra. La cavea risulta addossata al lato dell’aggere del lato S delle mura. Nella fase sannitica, il diametro dell’orchestra doveva aggirarsi intorno ai 50 piedi (circa 13, 80 m.). La tecnica edilizia utilizzata in tale fase è l’opera cementizia con paramento in opus incertum di caementa di calcare con un diametro medio di 20 cm e di blocchetti retangolari della medesima altezza. L’ipotesi della contemporaneità di realizzazione dei rifacimenti e potenziamenti delle mura cittadine e del ginnasio, di cui faceva parte il teatro, è avvalorata dalla presenza di nicchie curve quali contrafforti sia nel muro di contenimento dell’aggere che delimita la palestra ad O della cavea, sia negli analemmata della stessa.
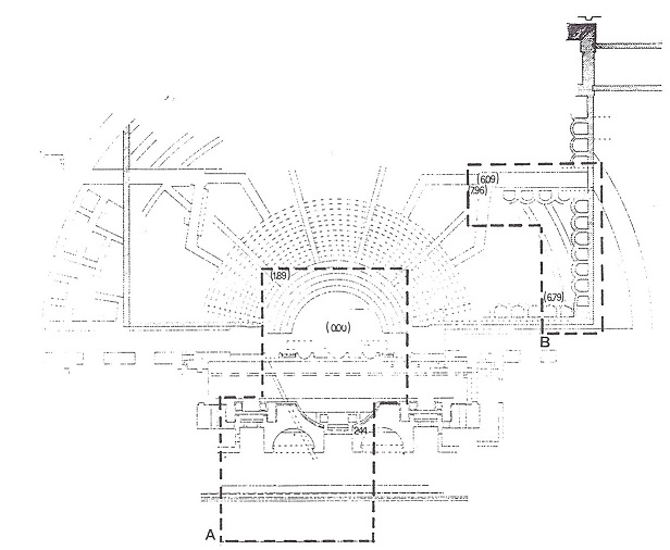
Pianta generale e di dettaglio del teatro
Nella seconda fase del teatro, compresa tra la tarda età augustea e l’inizio di quella tiberiana, il teatro è interessato da varie trasformazioni e da un significativo ampliamento, evidenti anche nell’utilizzo molto accurato del latericium e nella realizzazione delle tre nicchie della scenae frons; la nicchia centrale si presenta curva come nel caso di altri teatri noti (Pompei, Ercolano, Fiesole e Volterra). In questa epoca, l’asse fu spostato di 3,50 m. verso est ed il diametro fu ampliato fino a raggiungere 96 m. L’orchestra ha un diametro di 23,84 m. La fronte del pulpitum, articolata tra due scalette da cinque nicchie alternate, rettangolari e curve, era anticipata da una vasca sporgente fino al centro dell’orchestra con zampilli posti dinanzi alle tre nicchie curve. Gli zampilli erano alimentati da fistule. Le strutture nella cavea sono in opus reticulatum di tufo con ammorsature in latericium negli spigoli e nei piedritti; anche il pulpitum è realizzato nella medesima tecnica, mentre tutto l’edificio scenico è in laterizio.
Vedute del teatro
I sedili della cavea erano rivestiti di marmo italico, mentre la praecinctio inferiore e le scalinate d’accesso avevano una pavimentazione in blocchi di calcare dei monti Lattari. La ricca decorazione della scaenae frons databile alla trada età augustea è andata quasi del tutto perduta, a causa delle spolizazioni delle epoche successive. Tra i resti degni di nota, si segnalano un frammento di base attica con il toro superiore ornato da foglie di quercia, parti di capitelli corinzi con foglie di canna, elementi di epistilio con kymation lesbio e cornici a mensole simili a quelle del teatro di Pompei. Nel vano in fondo all’iposcenio, fu trovata la testa di un ritratto marmoreo di Agrippina Maggiore, forse in origine collocata in una delle nicchie della scaenae frons. Anche i frammenti delle decorazioni parietali, riconducibili al III stile pompeiano, confermano la datazione della decorazione e del rifacimento tra Augusto e gli inizi dell’età tiberiana. Una epigrafe documenta un ulteriore restauro sotto Domiziano. Attribuibile a questa fase l’abolizione della vasca dell’orchestra e la sua conseguente pavimentazione, mal conservata, realizzata in lastre di marmi colorati di diverse origini. L'edificio, danneggiato dal terremoto del 62 d.C., subì importanti restauri e sopravvisse alla terribile eruzione vesuviana del 79 d.C. Dopo il IV sec. d.C., caduto in disuso, fu lentamente spoliato dei suoi elementi più preziosi finchè alluvioni successive in epoca medievale non ne cancellarono il ricordo.

